|
(1)概念
封火山墻,是一種屋頂與山墻的組合形式,多見于江南。其特征是山墻高出屋頂,這樣可以有效防止火災蔓延,故得該名。封火山墻是硬山山墻的一種變異,廣泛應用于南方建筑和城市沿街建筑之中,除了能起到防火防盜的作用,還能起到很好的裝飾效果。
(2)封火山墻的形式
封火山墻常見的形式有一字式、八字式、如意式、五岳朝天式、五滴水式、觀音兜式、拱背式、組合式等,詳見下圖。

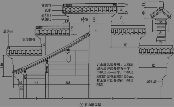
其中,觀音兜式多見于徽派建筑,硬山屋脊自金桁起做曲線至頂,類似佛像中觀音菩薩所戴的帽子式樣,又似貓舒展身軀或發怒時的神態。五山屏風墻(又稱五滴水式),以前后墀頭墻進深分作五分半,中間屏風占1.5份,其余各占1份形成。詳見下圖。


|